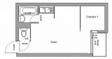
Studio - L'EDELWEISSChamrousse 1750 - Roche Béranger
En Bref
- lits superposés
- Télévision

- Local à ski

Informations Générales
- Localisation :
- Chamrousse 1750 - Roche Béranger
- Location proposée par :
- Une agence immobilière (annonce d'un professionnel)
- Type de location :
- Appartement
- Type d'appartement :
- Studio
- Studio cabine
- Capacité maximum (bébés et enfants inclus) :
- 4 personnes
- Superficie :
- 23 m²
- Résidence :
- Edelweiss
- Etage :
- Troisieme étage
- Avec ascenseur
- Sans ascenseur
- Exposition :
- Sud
- Vue :
- Vue sur la Vallée
- Cabine 1 :
- lit(s) 2 personnes
- Salle de bain :
- salle(s) de bains avec 1 baignoire
- WC séparés
- Bon à savoir :
- Remise des clés par l'hébergeur à 1650
- Draps, serviettes et ménage :
- Draps et linge de toilette non fournis
- Draps, serviettes et ménage en option
- Taxe de séjour :
- Taxe de séjour à régler auprès de l'hébergeur
- Distance du domaine alpin :
- Au pied des pistes (à moins de 100m)
- Entre 100 et 600m des pistes
- Accessibilité du domaine nordique :
- Accessible par navette hiver
- Caution :
- Paiement caution en chèque
- paiement caution en CB
- Horaire d'arrivées et départ :
- Arrivée à partir de 16h et départ avant 10h
- Info hébergeur : Remise des clés Chamrousse 1650
Équipements & Services
- Etage :
- Avec ascenseur
- Sans ascenseur
- Extérieurs :
- Sans balcon
- Avec balcon
- Terrasse
- Rez de Jardin ou jardin
- Equipement cuisine :
- plaques éléctriques
- Four
- réfrigérateur
- Equipements divers :
- Local à ski
À Noter
- Bon à savoir :
- Remise des clés par l'hébergeur à 1650
- Stationnement :
- Parking public
- Infos supplémentaires :
- Logement non fumeur
- Caution :
- Paiement caution en chèque
- paiement caution en CB
- Caution à verser 350€
Accessibilité
- Accès pers. à mobilité réduite :
- Non accessible aux personnes à mobilité réduite
Situation sur le Plan
Carte

Calcul d'itinéraire
Destination
1164 Route de la croisette
38410
CHAMROUSSE
Coordonnées GPS
Latitude : 45.115947
Longitude : 5.877147
- Accessibilité du domaine nordique :
- Accessible par navette hiver
- Distance rassemblement ESF :
- à moins de 0.80
- à plus de 0.80
























